400-666-0005
CH EN

KYN28-12 Medium voltage AC metal enclosed switchgear

This device is an indoor metal armored withdrawable switchgear (hereinafter referred to as switchgear), which is a complete set of power distribution equipment for 3.6-12kV three-phase AC 50Hz single busbar segmentation system. It is mainly used for power plants, small and medium-sized generator power transmission, industrial and mining enterprises and institutions power distribution, as well as power receiving and power transmission of secondary substations of power industry systems and starting of large high-voltage motors. For control protection and monitoring purposes, this switchgear meets the requirements of DL404-囗, IEC60298, GB 3906-□ and other standards. It has interlocking functions to prevent the push and pull of circuit breaker trolleys with load, prevent the circuit breaker from being opened and closed by mistake, prevent the circuit breaker from being closed when the grounding switch is in the closed position, prevent the circuit breaker from being mistakenly entered into the live compartment, and prevent the grounding switch from being mistakenly closed when it is live. It can be equipped with both VS1 vacuum circuit breakers and ABB's VD4 vacuum circuit breakers. It is actually a power distribution device with superior performance.

  • Usage environment

    Normal conditions

    a. Ambient air temperature: upper limit, +40℃; lower limit, -10℃

    b. Altitude: ≤ 1000M

    c. Relative humidity: daily average relative humidity is not more than 95%, monthly average relative humidity is not more than 90%;

    d. Earthquake: intensity does not exceed 8°

    e. The surrounding air should not be obviously polluted by corrosive or flammable gases, water vapor, etc.

    f. No serious pollution and frequent severe vibration, the harshness design under harsh conditions meets Class 1 requirements.


    Special working conditions:

    When used under normal environmental conditions exceeding those specified in GB3906-□, the user and the manufacturer shall negotiate.


  • Model and meaning

    image.png

Technical Parameter

image.png


Structural characteristics

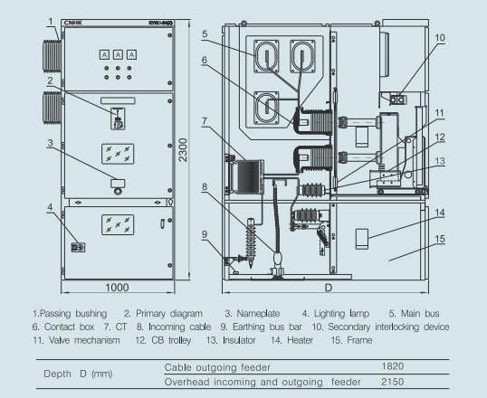
The switchgear is designed according to the armored metal-enclosed switchgear in GB3906-. The whole is composed of two major parts: the cabinet and the central withdrawable component (i.e., the trolley). The cabinet is divided into four separate compartments, and the protection level of the shell is IP4X. The protection level of each small room and the circuit breaker door is IP2X when it is opened. It has overhead inlet and outlet lines, wire inlet and outlet lines and other functional solutions. After arrangement and combination, it can become a distribution device in various solutions. This switchgear can be installed, debugged and maintained from the front, so it can be arranged back to back in a double arrangement and installed against the wall, which improves the safety and flexibility of the switchgear and reduces the floor space.

Structural diagram

image.png

Configuration diagram

Scan QR code
Follow Huanghua Group

Contact Us

wm@huanghua.com cc@huanghua.com